Your Emerging AECO Technology and Process Partners
Education - Selection - Implementation
Email Password    
facebook linkedin twitter
Home / Projects / Fort Irwin Army Hospital

Fort Irwin Army Hospital


Aspenhills Consulting is providing support services for the drywall contractor at the new $160 million Fort Irwin Army Hospital, California. Our work includes:

  • Creation of a 3D model of the interior and exterior drywall framing systems from the designer’s 2D documents.
  • Identification of unique company standards and details for inclusion in the model.
  • Participation in the GC led clash detection process on behalf of the trade contractor.
  • Coordination with other sub trades.
  • Identification and detailing of prefabricated sections of work.
  • Location of layout points in the model for use by robotic total stations.
  • Training for company personnel in the use of modeling and clash detection software.
  • Sales of a robotic total station and required software, as well as training in their use.


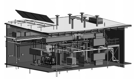
Fort Irwin Central Utility Plant

ACI will work with the trade contractor’s team to maximize its ability to pre-assemble the framing components off-site for quality control, labor and schedule savings, and safety.

Our services will also include working with the field crews to utilize the coordinated model information for field layout purposes. Preselected model data will be directly downloaded to robotic total stations which enable a one-man crew to specify the location of all partitions. The end result is a transfer of the accuracy of the model to the field, and substantial savings in on-site labor and schedule.

At the completion of construction, the total stations will also be used in a quality control process to validate the systems’ installation, and to ensure an accurate as-built model for the owner’s future operations.